Einfamilienhaus "Kappeln"

Sachsen-Anhalt, Deutschland

Objekt-Beschreibung
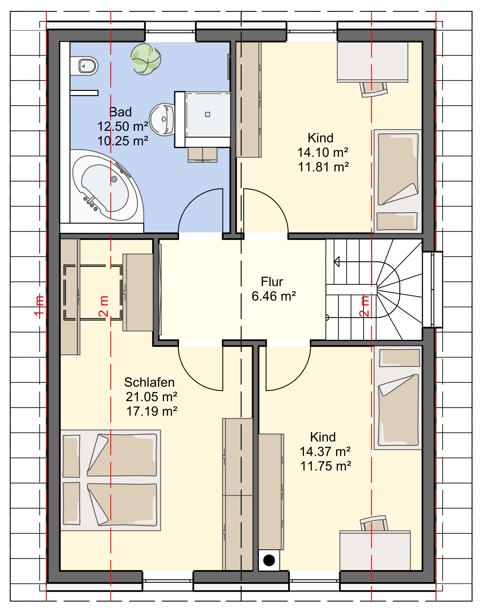
Alles auf einen Blick: Außenmaße: 8,0 m x 11,32 m Wohnfläche: ca. 124 m² Baustil: 1 ½ geschossig Dachform: Satteldach Kurzbeschreibung: Modernes offenes Wohnen, trotzdem kompakt und gemütlich – so wird das Einfamilienhaus „Kappeln“ ausgezeichnet! Ausgestattet mit einem großen und hellen Wohn-/Essbereich, separater Küche, Gäste-WC inklusive Dusche, drei Schlafräumen und einem modernen Badezimmer, gibt es hier alles, was die Familie braucht und doch soviel mehr! Ausstattungsmerkmale: Massivbauweise 3-fach verglaste Fenster plus Rollläden Fußbodenheizung Luft-Wärmepumpen-Paket Wohnräume mit tapezierfähigen Oberflächen Eigenleistungen möglich individuelle Gestaltung und Umplanung kostenfrei möglich Preis auf Anfrage
Basis Details
Unterteilungstyp:
Neubau
Preis:
0€
Räume:
4
Wohnfläche (ca.):
124 m²
Baujahr (ca.):
2022
Eigenschaften
Wanne
Dusche
Fußbodenheizung
Luft-Wärmepumpe
Adresse
Land:
Deutschland
Bundesland:
Sachsen-Anhalt
Longitude:
E0° 0' 0''
Latitude:
N0° 0' 0''
Neubau
Wohnfläche (ca.):
124 m²
0€
Objekt anfragen

Objekt anfragen