Stadtvilla "Marisol"

Sachsen-Anhalt, Deutschland

Objekt-Beschreibung
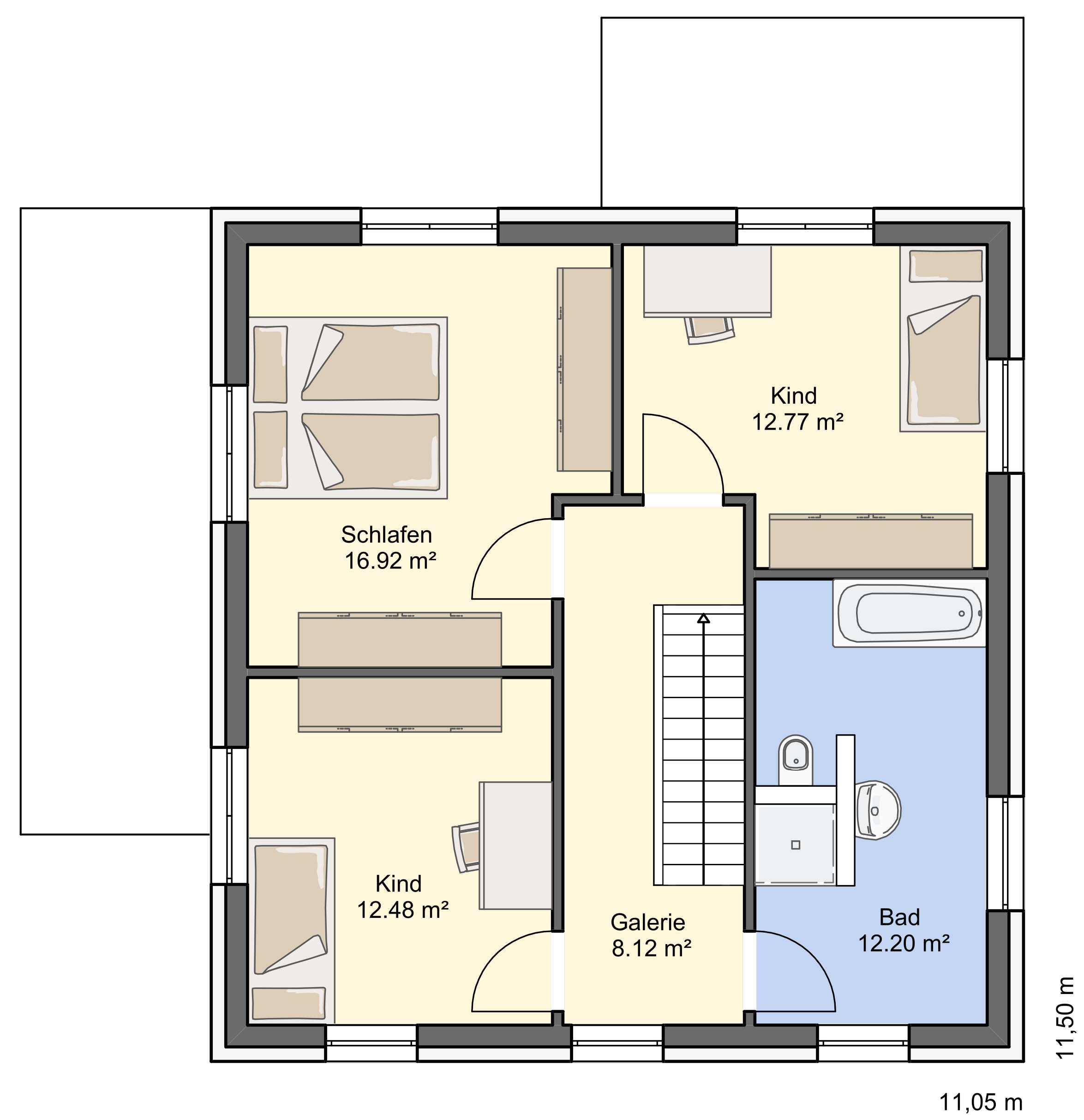
Alles auf einen Blick: Außenmaße: 11,05 x 11,50 m Wohnfläche: ca. 145 m² Baustil: 2 geschossig, Stadtvilla mit Anbau Dachform: Walmdach Kurzbeschreibung: Ein Hauch von Süden mit mediterranem Flair – die Stadtvilla „Marisol“ macht’s möglich! Genießen Sie gemütliche Stunden unter einem überdachten Freisitz und in der hellen offenen Wohnküche (wahlweise zu schließen). Speisekammer, großes Gäste-WC, drei Schlafräume und ein geräumiges Badezimmer runden das gelungene Gesamtkonzept ab! Ausstattungsmerkmale: Massivbauweise 3-fach verglaste Fenster plus Rollläden Fußbodenheizung Luft-Wärmepumpen-Paket Wohnräume mit tapezierfähigen Oberflächen Eigenleistungen möglich individuelle Gestaltung und Umplanung kostenfrei möglich Preis auf Anfrage
Basis Details
Unterteilungstyp:
Neubau
Preis:
0€
Räume:
4
Wohnfläche (ca.):
145 m²
Baujahr (ca.):
2022
Eigenschaften
Wanne
Dusche
Fußbodenheizung
Luft-Wärmepumpe
Adresse
Land:
Deutschland
Bundesland:
Sachsen-Anhalt
Longitude:
E0° 0' 0''
Latitude:
N0° 0' 0''
Neubau
Wohnfläche (ca.):
145 m²
0€
Objekt anfragen

Objekt anfragen